2-к, Борисенко Показать на карте
Первомайский район
Владивосток
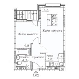
2-комн. квартира с европланировкой от застройщика в ЖК ''Астон. А зори здесь тихие'' на 2 этаже. Квартира без отделки, полностью готова к чистовой отделке и дальнейшему ремонту. Общая площадь: 49.48 кв.м., жилая: 32.64 кв.м., общая площадь гостиной-столовой с кухонной зоной: 23.41 кв.м. Европланировка, за счет большой площади кухни-гостиной квартира выглядит просторной и очень удобна для жизни. Квартира угловая, идеально подойдет любителям тишины и панорамных видов. В квартире один совмещенный санузел. Высота потолков 2.87 м. Мы позаботились о том, чтобы сберечь ваше время и силы на все основные грязные, шумные ремонтные работы. В квартире предусмотрена черновая отделка: возведены стены, выполнена стяжка пола и нанесена улучшенная гипсовая штукатурка. Поверхности дополнительно прошпаклёваны базовым слоем. Просторная евро-двухкомнатная квартира с функциональным зонированием, большим количеством окон и света! Прекрасный выбор для одного или пары, особенно, если вы любите принимать гостей. Предусмотрена кухня-гостиная, в которой можно легко спланировать зону приготовления пищи и зону отдыха с диваном. Отдельная спальня с двумя окнами, где удобно расположится большая кровать. Просторный санузел с ванной и местом под стиральную машину. Дом монолитный, трехподъездный, высотой 17 этажей. Квартира находится во 2-й секции в корпусе 1. На этаже 5 квартир. В подъезде 1 пассажирский и 1 грузовой лифт. Окончание строительства - 2 квартал 2028 года. Оформление сделки по договору долевого участия. ''Астон. А зори здесь тихие'' — жилой дом бизнес-класса, состоящий из трёх 17-этажных секций, объединенных общим стилобатом. В каждой секции по 2 лифта, количество квартир на этаже — до 5. Для жителей предусмотрены подземный трехуровневый паркинг, кладовые помещения и колясочные, коммерческая инфраструктура на первом этаже. Территория жилого комплекса продумана так, чтобы ее жителям было безопасно и комфортно: — закрытый двор без машин, система контроля доступа, — детские площадки с учетом разных возрастных групп, — воркаут-зона, — безбарьерная среда, — велопарковки, Расположение: Жилой комплекс расположен на Патрокле — одном из самых быстроразвивающихся районов города. В пешей доступности — школа и детские сады, четыре пляжа, парк у озера и набережная для прогулок, торговый центр. В 10 минутах езды на автомобиле — Русский остров и бухта Золотой Рог, в 1 минуте — объездная Седанка—Патрокл. Добраться в любую точку города быстро и легко! Способы покупки: — дальневосточная ипотека,— семейная ипотека, — IT-ипотека, — ипотека для участников СВО и их семей, — рассрочка, О застройщике: Строительство проекта ''Астон. А зори здесь тихие'' осуществляет федеральный застройщик Астон. Проекты Астон — это современные жилые кварталы с вниманием к деталям и продуманным благоустройством в 4 городах России: Екатеринбурге, Новосибирске, Тюмени и Владивостоке. #26Doeb
49 м2
2 / 17 этаж
Монолит
- Показать контакты
- Добавить в избранное
49 м2
2 / 17 этаж
Монолит
9 147 000
184 863 /м2
Новостройка,
II-2028
II-2028
