logo
N1.RU — новая улучшенная версия Е1.Недвижимость
Чтобы вернуться на старый сайт Е1.Недвижимость, перейдите по ссылке в нижней части сайта N1.RU
  • Продажа
  • Аренда
  • Новостройки
  • Журнал
  • Компании
  • Шаблоны документов
  • Налоговый вычет
  • Еще
  • Личный кабинет
    • Регистрация на Циан
    • Владивосток
  • Добавить объявление
Тип недвижимости
Владивосток
Начните вводить или выберите объект в выпадающем списке
  • Район и микрорайон
Количество комнат
Цена
  1. Недвижимость в Владивостоке
  2. Продажа
  3. Квартиры
  4. 5192 объявления

Продажа квартир в Владивостоке

  • Новостройки4 150
  • Вторичка1 042
  • Без посредников16
За все время
Сортировка по умолчанию
СпискомСписком
ТаблицейТаблицей
На картеНа карте
Открыть поиск по карте

По вашему запросу объявлений не найдено

1/49
1-к, Мыс Кунгасный, 3б Показать на карте
Фрунзенский район
Владивосток
Продаётся 1-комнатная квартира в сданном доме (Дом 1), срок сдачи: IV-кв. 2024, общей площадью 33.13 кв.м., на 9 этаже. Новый жилой дом от застройщика ''Элемент-С'' расположен по адресу город Владивосток, улица Мыс Кунгасный.
33 м2
9 / 13 этаж
Монолит
  • Показать контакты
  • Добавить в избранное
33 м2
9 / 13 этаж
Монолит
10 601 600 
320 000 /м2
Новостройка
1/16
2-к, Мыс Кунгасный, 3б ст2 Показать на карте
Фрунзенский район
Владивосток
Шикарная 2-х комнатная евродвушка в центре города В ЖК бизнес класса More | Море из окон! | 1-я линия | Выход на пляж Живите на берегу моря в сердце Владивостока!*ШИКАРНЫЙ ВИД НА МОРЕ: Панорамные окна — ваше личное море прямо в комнате! Просыпайтесь под шум волн.ПЕРВАЯ ЛИНИЯ У МОРЯ С ВЫХОДОМ НА ПЛЯЖ: Ваша собственная набережная и пляж — буквально за порогом. Никаких дорог между вами .Находитесь в центре, все главные достопримечательности — в шаговой доступности:* кунгасный парк и пляж :** 1 минута от дома пешком* Железнодорожный вокзал Владивостока ~25-30 минут пешком / **5-7 минут на такси* Центральная площадь, Арбат, Спортивная набережная 15 - 20 минут пешком* Маяк Токаревская кошка: ~15 минут на такси/автобусе.* Музей ''Ворошиловская батарея'' (о. Русский):** ~25-30 минут на такси (через Русский мост).ПЛАНИРОВКА:- Уютная спальня с комфортной двуспальной кроватью и светлая,- функциональная кухня-гостиная- совмещенный санузел с стиральной и сушильной машинами- открытый балкон с видом на море !Ремонт сделан из качественных дорогих материалов , все продумано до мелочей ! В доме есть панорамная эксплуатируемая крыша для проживающих АпартаментыЖК Море - это закрытый двор без машин, приватная территория, терраса для отдыха, безопасность, роскошь мест общего пользования, кафена первых этажах жилого комплекса расположены:• Минимаркет,• Салон красоты,• СПА-салон,• Станция зарядки электромобилей,• детская и спортивная площадкиШкола
40 м2
11 / 18 этаж
  • Показать контакты
  • Добавить в избранное
40 м2
11 / 18 этаж
21 900 000 
547 500 /м2
1/30
3-к, Победы, 3 Показать на карте
Находка
В квартире был сделан капитальный ремонт.Стены выровнены под ноль, углы 90, потолок перетёрт. Радиаторы биметалл. Выход на балкон и лоджию витражи. Балкон и лоджия окна KBE. Окна выходят на северо-запад и юго-восток. Проводка заменена на 100%. Счётчик на холодную воду. Тепловой счётчик стоит на весь дом и находится в цоколе дома.Входная дверь расширена. Встроенная мебель - может остаться по договорённости.Дом находится в центре посёлка. Начальная школа находится в в 50-ти метрах. Одиннадцатилетка в 150-ти метрах.В шаговой доступности магазины, хоккейная коробка, стадион ,спорт-клуб . Магазины , рынок так же в минутной ходьбе.До пляжа 5 минут, не спеша.Могу быть только на связи в ватсап.
61 м2
4 / 5 этаж
Кирпич
  • Показать контакты
  • Добавить в избранное
61 м2
4 / 5 этаж
Кирпич
6 800 000 
111 111 /м2
1/40
1-к, Давыдова, 20 Показать на карте
Советский район
Владивосток
Компания ''Этажи-Владивосток'' предлагает к продаже студию на 3 этаже.Квартира 23,3 м2 оптимально подходит для небольшой семьи . Конструкция квартиры позволяет создать планировку, которая будет удобна вашей семье!В удовлетворительном состоянии находятся окна, натяжной потолок.Стены обои, т.е. можно быстро освежить.Квартира очень теплая и уютная, соседи приветливые и спокойные.Один собственник, документы подготовлены к продаже.Квартира подходит под Ипотеку.Покупка небольших квартир, хорошее и надежное вложение в будущее. Ищем нового хозяина! Ждем звонков! Смотрите и покупайте!В шаговой доступности супермаркеты, школа, МФЦ, торговые центры, медицинские и развлекательные учреждения. Рядом с домом остановка маршрута 20, Давыдова-Автовокзал. Удобный и отличный район для жизни! Код пользователя: 93580Номер в базе: 9038231
23 м2
3 / 9 этаж
Кирпич
  • Показать контакты
  • Добавить в избранное
23 м2
3 / 9 этаж
Кирпич
4 300 000 
184 549 /м2
    1/10
    1-к, Борисенко, 48 корп. 4 Показать на карте
    Первомайский район
    Владивосток
    Продаётся 1-комн. квартира площадью 31,9 кв.м на 25 этаже 30 этажного дома (Корпус 4, Секция 4) проекта ПИК Борисенко 48. Светлый просторный подъезд на уровне земли, функциональная планировка, большие окна, c отделкой. ''Борисенко 48'' - небольшой квартал в Первомайском районе, в 15 минутах пути на автомобиле от центра Владивостока. С верхних этажей откроется живописный вид на город и сопки. В проекте всего четыре дома и подземный паркинг, в который можно будет спуститься на лифте. Высота домов от 17 до 30 этажей - благодаря переменной этажности солнце будет лучше освещать двор и квартиры. На первых этажах откроются пекарни, кафе, магазины и другие сервисы - это удобно, когда внезапно закончится хлеб или захочется побаловать себя горячим кофе. Из каждого дома будет выход в уютный двор-парк - это закрытая территория для отдыха, где растут цветы и деревья, оборудованы детские и спортивные площадки. Рядом с ''Борисенко 48'' появится также детский сад для 150 малышей. В пешей доступности есть всё необходимое для комфортной жизни: школы, детские сады, поликлиника и магазины. До крупных торговых центров ''Калина Молл'' и ''Луговая'', а также супермаркета ''Реми'' - всего 5 минут на машине. А до озера на Сафонова, которое отлично подходит для прогулок и отдыха, можно дойти пешком за 9 минут. Живописная Леопардовая набережная - в 10 минутах на автомобиле. Из квартала можно будет выехать как на улицу Борисенко, так и на улицу Сафонова. Артикул 919176 (Застройщик ООО ''СЗ ''Юстина'')
    31 м2
    25 / 30 этаж
    Монолит
    • Показать контакты
    • Добавить в избранное
    31 м2
    25 / 30 этаж
    Монолит
    7 014 810 
    219 900 /м2
    Новостройка,
    IV-2026
    1/2
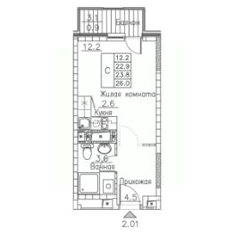
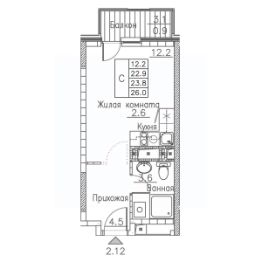
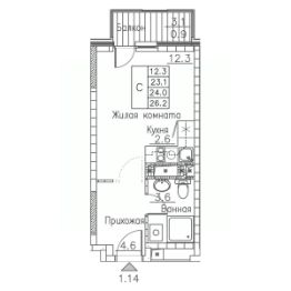
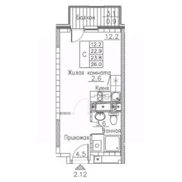
    3-к, Нейбута, 137 Показать на карте
    Ленинский район
    Владивосток
    Жилой комплекс ''Гринхилс'' расположен во Владивостоке в микрорайоне Зелёный угол. Комплекс состоит из трёх двухсекционных домов комфорт-класса разной этажности. На территории будет расположен каскадный двор-парк с зонами для отдыха, прогулок и различными площадками для детей и взрослых. Предусмотрен гостевой и отдельный индивидуальный паркинг для жителей.Во дворе не будет машин, безбарьерные входы в подъезды доступны с обеих сторон. Колясочные и современные инженерные системы сделают жизнь в комплексе максимально удобной и комфортной. Благодаря продуманному освещению, жителям будет приятно гулять и отдыхать во дворе в вечернее и ночное время.
    61 м2
    19 / 19 этаж
    Кирпич - монолит
    • Показать контакты
    • Добавить в избранное
    61 м2
    19 / 19 этаж
    Кирпич - монолит
    11 508 396 
    186 220 /м2
    1/2
    2-к, Нейбута, 137 Показать на карте
    Ленинский район
    Владивосток
    Жилой комплекс ''Гринхилс'' расположен во Владивостоке в микрорайоне Зелёный угол. Комплекс состоит из трёх двухсекционных домов комфорт-класса разной этажности. На территории будет расположен каскадный двор-парк с зонами для отдыха, прогулок и различными площадками для детей и взрослых. Предусмотрен гостевой и отдельный индивидуальный паркинг для жителей.Во дворе не будет машин, безбарьерные входы в подъезды доступны с обеих сторон. Колясочные и современные инженерные системы сделают жизнь в комплексе максимально удобной и комфортной. Благодаря продуманному освещению, жителям будет приятно гулять и отдыхать во дворе в вечернее и ночное время.
    44 м2
    8 / 19 этаж
    Кирпич - монолит
    • Показать контакты
    • Добавить в избранное
    44 м2
    8 / 19 этаж
    Кирпич - монолит
    8 652 400 
    194 000 /м2
    1/2
    3-к, Нейбута, 137 Показать на карте
    Ленинский район
    Владивосток
    Жилой комплекс ''Гринхилс'' расположен во Владивостоке в микрорайоне Зелёный угол. Комплекс состоит из трёх двухсекционных домов комфорт-класса разной этажности. На территории будет расположен каскадный двор-парк с зонами для отдыха, прогулок и различными площадками для детей и взрослых. Предусмотрен гостевой и отдельный индивидуальный паркинг для жителей.Во дворе не будет машин, безбарьерные входы в подъезды доступны с обеих сторон. Колясочные и современные инженерные системы сделают жизнь в комплексе максимально удобной и комфортной. Благодаря продуманному освещению, жителям будет приятно гулять и отдыхать во дворе в вечернее и ночное время.
    67 м2
    15 / 19 этаж
    Кирпич - монолит
    • Показать контакты
    • Добавить в избранное
    67 м2
    15 / 19 этаж
    Кирпич - монолит
    13 174 936 
    194 608 /м2
    1/2
    1-к, Нейбута, 137 Показать на карте
    Ленинский район
    Владивосток
    Жилой комплекс ''Гринхилс'' расположен во Владивостоке в микрорайоне Зелёный угол. Комплекс состоит из трёх двухсекционных домов комфорт-класса разной этажности. На территории будет расположен каскадный двор-парк с зонами для отдыха, прогулок и различными площадками для детей и взрослых. Предусмотрен гостевой и отдельный индивидуальный паркинг для жителей.Во дворе не будет машин, безбарьерные входы в подъезды доступны с обеих сторон. Колясочные и современные инженерные системы сделают жизнь в комплексе максимально удобной и комфортной. Благодаря продуманному освещению, жителям будет приятно гулять и отдыхать во дворе в вечернее и ночное время.
    25 м2
    18 / 18 этаж
    Кирпич - монолит
    • Показать контакты
    • Добавить в избранное
    25 м2
    18 / 18 этаж
    Кирпич - монолит
    6 262 511 
    242 733 /м2
    1/3
    2-к, Нейбута, 137 Показать на карте
    Ленинский район
    Владивосток
    Жилой комплекс ''Гринхилс'' расположен во Владивостоке в микрорайоне Зелёный угол. Комплекс состоит из трёх двухсекционных домов комфорт-класса разной этажности. На территории будет расположен каскадный двор-парк с зонами для отдыха, прогулок и различными площадками для детей и взрослых. Предусмотрен гостевой и отдельный индивидуальный паркинг для жителей.Во дворе не будет машин, безбарьерные входы в подъезды доступны с обеих сторон. Колясочные и современные инженерные системы сделают жизнь в комплексе максимально удобной и комфортной. Благодаря продуманному освещению, жителям будет приятно гулять и отдыхать во дворе в вечернее и ночное время.
    43 м2
    1 / 19 этаж
    Кирпич - монолит
    • Показать контакты
    • Добавить в избранное
    43 м2
    1 / 19 этаж
    Кирпич - монолит
    7 625 400 
    176 514 /м2
    1/2
    1-к, Нейбута, 137 Показать на карте
    Ленинский район
    Владивосток
    Жилой комплекс ''Гринхилс'' расположен во Владивостоке в микрорайоне Зелёный угол. Комплекс состоит из трёх двухсекционных домов комфорт-класса разной этажности. На территории будет расположен каскадный двор-парк с зонами для отдыха, прогулок и различными площадками для детей и взрослых. Предусмотрен гостевой и отдельный индивидуальный паркинг для жителей.Во дворе не будет машин, безбарьерные входы в подъезды доступны с обеих сторон. Колясочные и современные инженерные системы сделают жизнь в комплексе максимально удобной и комфортной. Благодаря продуманному освещению, жителям будет приятно гулять и отдыхать во дворе в вечернее и ночное время.
    25 м2
    11 / 19 этаж
    Кирпич - монолит
    • Показать контакты
    • Добавить в избранное
    25 м2
    11 / 19 этаж
    Кирпич - монолит
    5 570 424 
    219 308 /м2
    1/2
    2-к, Нейбута, 137 Показать на карте
    Ленинский район
    Владивосток
    Жилой комплекс ''Гринхилс'' расположен во Владивостоке в микрорайоне Зелёный угол. Комплекс состоит из трёх двухсекционных домов комфорт-класса разной этажности. На территории будет расположен каскадный двор-парк с зонами для отдыха, прогулок и различными площадками для детей и взрослых. Предусмотрен гостевой и отдельный индивидуальный паркинг для жителей.Во дворе не будет машин, безбарьерные входы в подъезды доступны с обеих сторон. Колясочные и современные инженерные системы сделают жизнь в комплексе максимально удобной и комфортной. Благодаря продуманному освещению, жителям будет приятно гулять и отдыхать во дворе в вечернее и ночное время.
    56 м2
    15 / 19 этаж
    Кирпич - монолит
    • Показать контакты
    • Добавить в избранное
    56 м2
    15 / 19 этаж
    Кирпич - монолит
    9 885 942 
    176 220 /м2
    1/3
    3-к, Нейбута, 137 Показать на карте
    Ленинский район
    Владивосток
    Жилой комплекс ''Гринхилс'' расположен во Владивостоке в микрорайоне Зелёный угол. Комплекс состоит из трёх двухсекционных домов комфорт-класса разной этажности. На территории будет расположен каскадный двор-парк с зонами для отдыха, прогулок и различными площадками для детей и взрослых. Предусмотрен гостевой и отдельный индивидуальный паркинг для жителей.Во дворе не будет машин, безбарьерные входы в подъезды доступны с обеих сторон. Колясочные и современные инженерные системы сделают жизнь в комплексе максимально удобной и комфортной. Благодаря продуманному освещению, жителям будет приятно гулять и отдыхать во дворе в вечернее и ночное время.
    61 м2
    16 / 19 этаж
    Кирпич - монолит
    • Показать контакты
    • Добавить в избранное
    61 м2
    16 / 19 этаж
    Кирпич - монолит
    10 726 008 
    173 560 /м2
    1-к, Нейбута, 137 Показать на карте
    Ленинский район
    Владивосток
    Жилой комплекс ''Гринхилс'' расположен во Владивостоке в микрорайоне Зелёный угол. Комплекс состоит из трёх двухсекционных домов комфорт-класса разной этажности. На территории будет расположен каскадный двор-парк с зонами для отдыха, прогулок и различными площадками для детей и взрослых. Предусмотрен гостевой и отдельный индивидуальный паркинг для жителей.Во дворе не будет машин, безбарьерные входы в подъезды доступны с обеих сторон. Колясочные и современные инженерные системы сделают жизнь в комплексе максимально удобной и комфортной. Благодаря продуманному освещению, жителям будет приятно гулять и отдыхать во дворе в вечернее и ночное время.
    26 м2
    16 / 19 этаж
    Кирпич - монолит
    • Показать контакты
    • Добавить в избранное
    26 м2
    16 / 19 этаж
    Кирпич - монолит
    6 372 600 
    245 100 /м2
    1/2
    2-к, Нейбута, 137 Показать на карте
    Ленинский район
    Владивосток
    Жилой комплекс ''Гринхилс'' расположен во Владивостоке в микрорайоне Зелёный угол. Комплекс состоит из трёх двухсекционных домов комфорт-класса разной этажности. На территории будет расположен каскадный двор-парк с зонами для отдыха, прогулок и различными площадками для детей и взрослых. Предусмотрен гостевой и отдельный индивидуальный паркинг для жителей.Во дворе не будет машин, безбарьерные входы в подъезды доступны с обеих сторон. Колясочные и современные инженерные системы сделают жизнь в комплексе максимально удобной и комфортной. Благодаря продуманному освещению, жителям будет приятно гулять и отдыхать во дворе в вечернее и ночное время.
    56 м2
    9 / 19 этаж
    Кирпич - монолит
    • Показать контакты
    • Добавить в избранное
    56 м2
    9 / 19 этаж
    Кирпич - монолит
    9 504 170 
    169 415 /м2
    1-к, Нейбута, 137 Показать на карте
    Ленинский район
    Владивосток
    Жилой комплекс ''Гринхилс'' расположен во Владивостоке в микрорайоне Зелёный угол. Комплекс состоит из трёх двухсекционных домов комфорт-класса разной этажности. На территории будет расположен каскадный двор-парк с зонами для отдыха, прогулок и различными площадками для детей и взрослых. Предусмотрен гостевой и отдельный индивидуальный паркинг для жителей.Во дворе не будет машин, безбарьерные входы в подъезды доступны с обеих сторон. Колясочные и современные инженерные системы сделают жизнь в комплексе максимально удобной и комфортной. Благодаря продуманному освещению, жителям будет приятно гулять и отдыхать во дворе в вечернее и ночное время.
    26 м2
    9 / 19 этаж
    Кирпич - монолит
    • Показать контакты
    • Добавить в избранное
    26 м2
    9 / 19 этаж
    Кирпич - монолит
    5 827 380 
    224 130 /м2
    1-к, Нейбута, 137 Показать на карте
    Ленинский район
    Владивосток
    Жилой комплекс ''Гринхилс'' расположен во Владивостоке в микрорайоне Зелёный угол. Комплекс состоит из трёх двухсекционных домов комфорт-класса разной этажности. На территории будет расположен каскадный двор-парк с зонами для отдыха, прогулок и различными площадками для детей и взрослых. Предусмотрен гостевой и отдельный индивидуальный паркинг для жителей.Во дворе не будет машин, безбарьерные входы в подъезды доступны с обеих сторон. Колясочные и современные инженерные системы сделают жизнь в комплексе максимально удобной и комфортной. Благодаря продуманному освещению, жителям будет приятно гулять и отдыхать во дворе в вечернее и ночное время.
    26 м2
    15 / 19 этаж
    Кирпич - монолит
    • Показать контакты
    • Добавить в избранное
    26 м2
    15 / 19 этаж
    Кирпич - монолит
    6 321 380 
    243 130 /м2
    1/2
    1-к, Нейбута, 137 Показать на карте
    Ленинский район
    Владивосток
    Жилой комплекс ''Гринхилс'' расположен во Владивостоке в микрорайоне Зелёный угол. Комплекс состоит из трёх двухсекционных домов комфорт-класса разной этажности. На территории будет расположен каскадный двор-парк с зонами для отдыха, прогулок и различными площадками для детей и взрослых. Предусмотрен гостевой и отдельный индивидуальный паркинг для жителей.Во дворе не будет машин, безбарьерные входы в подъезды доступны с обеих сторон. Колясочные и современные инженерные системы сделают жизнь в комплексе максимально удобной и комфортной. Благодаря продуманному освещению, жителям будет приятно гулять и отдыхать во дворе в вечернее и ночное время.
    25 м2
    16 / 19 этаж
    Кирпич - монолит
    • Показать контакты
    • Добавить в избранное
    25 м2
    16 / 19 этаж
    Кирпич - монолит
    6 669 586 
    263 620 /м2
    1/2
    2-к, Нейбута, 137 Показать на карте
    Ленинский район
    Владивосток
    Жилой комплекс ''Гринхилс'' расположен во Владивостоке в микрорайоне Зелёный угол. Комплекс состоит из трёх двухсекционных домов комфорт-класса разной этажности. На территории будет расположен каскадный двор-парк с зонами для отдыха, прогулок и различными площадками для детей и взрослых. Предусмотрен гостевой и отдельный индивидуальный паркинг для жителей.Во дворе не будет машин, безбарьерные входы в подъезды доступны с обеих сторон. Колясочные и современные инженерные системы сделают жизнь в комплексе максимально удобной и комфортной. Благодаря продуманному освещению, жителям будет приятно гулять и отдыхать во дворе в вечернее и ночное время.
    42 м2
    17 / 19 этаж
    Кирпич - монолит
    • Показать контакты
    • Добавить в избранное
    42 м2
    17 / 19 этаж
    Кирпич - монолит
    9 377 354 
    222 740 /м2
    1/3
    2-к, Нейбута, 137 Показать на карте
    Ленинский район
    Владивосток
    Жилой комплекс ''Гринхилс'' расположен во Владивостоке в микрорайоне Зелёный угол. Комплекс состоит из трёх двухсекционных домов комфорт-класса разной этажности. На территории будет расположен каскадный двор-парк с зонами для отдыха, прогулок и различными площадками для детей и взрослых. Предусмотрен гостевой и отдельный индивидуальный паркинг для жителей.Во дворе не будет машин, безбарьерные входы в подъезды доступны с обеих сторон. Колясочные и современные инженерные системы сделают жизнь в комплексе максимально удобной и комфортной. Благодаря продуманному освещению, жителям будет приятно гулять и отдыхать во дворе в вечернее и ночное время.
    38 м2
    18 / 18 этаж
    Кирпич - монолит
    • Показать контакты
    • Добавить в избранное
    38 м2
    18 / 18 этаж
    Кирпич - монолит
    8 975 600 
    233 740 /м2
    1/2
    3-к, Нейбута, 137 Показать на карте
    Ленинский район
    Владивосток
    Жилой комплекс ''Гринхилс'' расположен во Владивостоке в микрорайоне Зелёный угол. Комплекс состоит из трёх двухсекционных домов комфорт-класса разной этажности. На территории будет расположен каскадный двор-парк с зонами для отдыха, прогулок и различными площадками для детей и взрослых. Предусмотрен гостевой и отдельный индивидуальный паркинг для жителей.Во дворе не будет машин, безбарьерные входы в подъезды доступны с обеих сторон. Колясочные и современные инженерные системы сделают жизнь в комплексе максимально удобной и комфортной. Благодаря продуманному освещению, жителям будет приятно гулять и отдыхать во дворе в вечернее и ночное время.
    67 м2
    6 / 19 этаж
    Кирпич - монолит
    • Показать контакты
    • Добавить в избранное
    67 м2
    6 / 19 этаж
    Кирпич - монолит
    13 658 881 
    201 756 /м2
    1/2
    1-к, Нейбута, 137 Показать на карте
    Ленинский район
    Владивосток
    Жилой комплекс ''Гринхилс'' расположен во Владивостоке в микрорайоне Зелёный угол. Комплекс состоит из трёх двухсекционных домов комфорт-класса разной этажности. На территории будет расположен каскадный двор-парк с зонами для отдыха, прогулок и различными площадками для детей и взрослых. Предусмотрен гостевой и отдельный индивидуальный паркинг для жителей.Во дворе не будет машин, безбарьерные входы в подъезды доступны с обеих сторон. Колясочные и современные инженерные системы сделают жизнь в комплексе максимально удобной и комфортной. Благодаря продуманному освещению, жителям будет приятно гулять и отдыхать во дворе в вечернее и ночное время.
    26 м2
    8 / 19 этаж
    Кирпич - монолит
    • Показать контакты
    • Добавить в избранное
    26 м2
    8 / 19 этаж
    Кирпич - монолит
    5 810 662 
    223 487 /м2
    1/2
    2-к, Нейбута, 137 Показать на карте
    Ленинский район
    Владивосток
    Жилой комплекс ''Гринхилс'' расположен во Владивостоке в микрорайоне Зелёный угол. Комплекс состоит из трёх двухсекционных домов комфорт-класса разной этажности. На территории будет расположен каскадный двор-парк с зонами для отдыха, прогулок и различными площадками для детей и взрослых. Предусмотрен гостевой и отдельный индивидуальный паркинг для жителей.Во дворе не будет машин, безбарьерные входы в подъезды доступны с обеих сторон. Колясочные и современные инженерные системы сделают жизнь в комплексе максимально удобной и комфортной. Благодаря продуманному освещению, жителям будет приятно гулять и отдыхать во дворе в вечернее и ночное время.
    44 м2
    9 / 19 этаж
    Кирпич - монолит
    • Показать контакты
    • Добавить в избранное
    44 м2
    9 / 19 этаж
    Кирпич - монолит
    8 687 188 
    194 780 /м2
    1/2
    1-к, Нейбута, 137 Показать на карте
    Ленинский район
    Владивосток
    Жилой комплекс ''Гринхилс'' расположен во Владивостоке в микрорайоне Зелёный угол. Комплекс состоит из трёх двухсекционных домов комфорт-класса разной этажности. На территории будет расположен каскадный двор-парк с зонами для отдыха, прогулок и различными площадками для детей и взрослых. Предусмотрен гостевой и отдельный индивидуальный паркинг для жителей.Во дворе не будет машин, безбарьерные входы в подъезды доступны с обеих сторон. Колясочные и современные инженерные системы сделают жизнь в комплексе максимально удобной и комфортной. Благодаря продуманному освещению, жителям будет приятно гулять и отдыхать во дворе в вечернее и ночное время.
    26 м2
    11 / 19 этаж
    Кирпич - монолит
    • Показать контакты
    • Добавить в избранное
    26 м2
    11 / 19 этаж
    Кирпич - монолит
    5 613 660 
    215 910 /м2
    1/2
    1-к, Нейбута, 137 Показать на карте
    Ленинский район
    Владивосток
    Жилой комплекс ''Гринхилс'' расположен во Владивостоке в микрорайоне Зелёный угол. Комплекс состоит из трёх двухсекционных домов комфорт-класса разной этажности. На территории будет расположен каскадный двор-парк с зонами для отдыха, прогулок и различными площадками для детей и взрослых. Предусмотрен гостевой и отдельный индивидуальный паркинг для жителей.Во дворе не будет машин, безбарьерные входы в подъезды доступны с обеих сторон. Колясочные и современные инженерные системы сделают жизнь в комплексе максимально удобной и комфортной. Благодаря продуманному освещению, жителям будет приятно гулять и отдыхать во дворе в вечернее и ночное время.
    25 м2
    15 / 19 этаж
    Кирпич - монолит
    • Показать контакты
    • Добавить в избранное
    25 м2
    15 / 19 этаж
    Кирпич - монолит
    6 657 340 
    262 100 /м2
    • В начало
    • 7
    • 8
    • 9
    • 10
    • 11
    • Следующая
    Распечатать
    Продажа квартир в Владивостоке
    • по районам
    • Ленинский район
    • Первомайский район
    • Первореченский район
    • Советский район
    • Фрунзенский район

    Вместе с этим также ищут:

    Продажа квартир в Владивостоке Продажа однокомнатных квартир в Владивостоке Продажа комнат в Владивостоке Продажа гаражей в Владивостоке Продажа вторички - квартиры в Владивостоке Квартиры в новостройках в Владивостоке

    🏠 Как купить квартиру в Владивостоке на N1?

    • ✔ В поисках объявления о продаже или покупке квартир в Владивостоке?
    • ✔ На N1 размещены 5,19 тыс квартир
    • ✔ Чтобы купить или продать недвижимость, воспользуйтесь формой поиска, фильтрами или быстрыми ссылками.

    💸 Сколько стоит квартира в Владивостоке?

    • 🟢 Средняя цена продажи квартир - 8,78 млн ₽
    • 🟢 Минимальная стоимость за 1 м2: 188,26 тыс ₽

    📚 Какая площадь квартир?

    • Наибольшая площадь: 225 м²
    • Минимальная площадь: 13 м²