Термин "Чистая продажа" означает, что в квартире никто не прописан или
есть куда выписаться и вывезти вещи. Это лучший вариант для покупателя.
Вероятность срыва сделки минимальна.
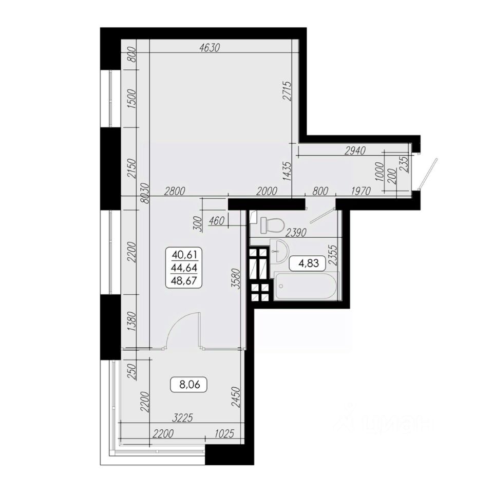
Квартира
Общая площадь44,64 м2
Жилая площадь26,5 м2
Кухня5 м2
Тип собственностисвидетельство о праве собственности
При покупке квартиры Вы получите в подарок полностью проработанный под ваш сценарий жизни ДИЗАЙН-ПРОЕКТ.
Что вас будет ждать в этом дизайн проекте:
— 11 рабочих чертежей, в числе которых обмерный план, планы по разводке электрических и сантехнических узлов, планы возведения перегородок, укладки пола, отделочных материалов и прочие. — Полный перечень отделочных материалов, где будут указаны их полное наименование, необходимое количество, и в каком именно помещении эти материалы предполагается применить. — И самое приятное — это визуализация будущего интерьера, благодаря которой вы сможете мысленно оказаться внутри вашей полностью готовой квартиры.
Завершение строительства 3 кв. 2026 года.
При покупке квартиры Вы получите в подарок полностью проработанный под ваш сценарий жизни ДИЗАЙН-ПРОЕКТ.
Что вас будет ждать в этом дизайн проекте:
— 11 рабочих чертежей, в числе которых обмерный план, планы по разводке электрических и сантехнических узлов, планы возведения перегородок, укладки пола, отделочных материалов и прочие. — Полный перечень отделочных материалов, где будут указаны их полное наименование, необходимое количество, и в каком именно помещении эти материалы предполагается применить. — И самое приятное — это визуализация будущего интерьера, благодаря которой вы сможете мысленно оказаться внутри вашей полностью готовой квартиры.
Завершение строительства 3 кв. 2026 года. Квартира от застройщика - без посредников и дополнительных комиссий. Подходит под ипотеку ведущих банков.
Жилой комплекс Премиум Парк: место для вашей личной вершины Идея жилого комплекса Премиум Парк родилась из особой энергии места. Он возведен на одной из самых высоких точек Владивостока — сопке Шошина, носящей имя генерал-майора Алексея Шошина, создавшего фортификационные сооружения Владивостокской крепости. Здесь, среди истории и высоты, воздух кажется чище, мысли — яснее, а раскинувшийся внизу город — словно на ладони. Эта возвышенность станет идеальной точкой для создания вашего личного пространства для великих свершений
Комплекс, расположенный на улице Верхняя, предлагает новый формат жизни с панорамными видами на Владивосток и Амурский залив. При этом локация сохраняет транспортную доступность ко всем основным магистралям города.
Более трети площади жилого комплекса займут комфортные общественные пространства с пешеходными дорожками и уютными лавочками. Ландшафтные дизайнеры предусмотрели трёхуровневое озеленение из газонов, кустарников, цветников и деревьев разных пород, которое формирует особый микроклимат и ощущение единения с природой в черте города.
Для ценителей активного образа жизни мы создали современные воркаут-зоны, оснащенные всем необходимым для эффективных тренировок на свежем воздухе. А самые юные жители найдут свой идеальный уголок для игр и приключений в тени деревьев на безопасных площадках, оборудованных горками, песочницами и развивающими комплексами.
Для автомобилистов мы подготовили отличное решение — просторный четырехуровневый паркинг на 347 машино-мест. Здесь вас ждут не только удобные парковочные места, но и дополнительные сервисы: автомойка и станция зарядки электромобилей. А на каждом этаже расположены келлеры — кладовые помещения площадью от 3,5 до 8 кв. м для хранения личных вещей.
В Премиум Парк вам не придется думать, где взять кофе с утра, куда записать ребенка на развивающие занятия или как найти место для продуктивной работы. Мы заранее продумали всю инфраструктуру, подбирая коммерческие помещения именно под ваши повседневные нужды. Это значит, что у вашего дома уже есть всё необходимое для полноценной и комфортной жизни.