Если цена в объявлении изменится, мы сразу сообщим вам об этом на электронную почту.
Нажимая «Подписаться», вы соглашаетесь с правилами.
продам 2-к, Нейбута, 13710 380 879 ₽
7 окт
Дата публикации объявления
Обн. вчера
Дата обновления объявления
Спецпредложение
Турбо x8
185 042 ₽/м²
Чистая продажа
Термин "Чистая продажа" означает, что в квартире никто не прописан или
есть куда выписаться и вывезти вещи. Это лучший вариант для покупателя.
Вероятность срыва сделки минимальна.
Квартира
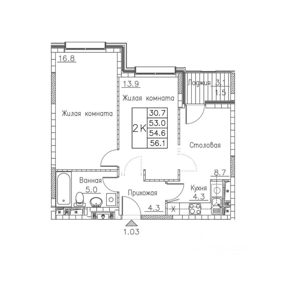
Общая площадь56,1 м2
Жилая площадь30,7 м2
Кухня4,3 м2
Тип собственностисвидетельство о праве собственности
Продается 2-к квартира в ЖК ''Гринхилс''. Отделка - whitebox, санузел - под ключ. Общая площадь квартиры — 56.1 кв. м, этаж 15 из 18. Тип дома — монолитный. Цена указана при 100% оплате.
ЖК ''Гринхилс'' — жилой квартал комфорт-класса в выгодной локации микрорайона Зеленый угол: развивающегося современного жилого кластера во Владивостоке, внутри которого реализуются проекты нового поколения, преобразуя город.
Полный набор необходимой инфраструктуры, транспортная доступность, исторические места города в шаговой доступности, а также окружение леса — все это и есть современный Зеленый угол.
Продается 2-к квартира в ЖК ''Гринхилс''. Отделка - whitebox, санузел - под ключ. Общая площадь квартиры — 56.1 кв. м, этаж 15 из 18. Тип дома — монолитный. Цена указана при 100% оплате.
ЖК ''Гринхилс'' — жилой квартал комфорт-класса в выгодной локации микрорайона Зеленый угол: развивающегося современного жилого кластера во Владивостоке, внутри которого реализуются проекты нового поколения, преобразуя город.
Полный набор необходимой инфраструктуры, транспортная доступность, исторические места города в шаговой доступности, а также окружение леса — все это и есть современный Зеленый угол.
ТРАНСПОРНАЯ ДОСТУПНОСТЬ - 15 минут до центра, - 17 минут до ж/д вокзала, - 10 мин до пляжа Патрокл*, - 30 минут до автовокзала, - 50 минут до аэропорта.
*В конце 2025 года планируется ввод дороги, соединяющей район с объездной Седанка-ДеФриз-Патрокл.
ПЛАНОВЫЙ ВВОД В ЭКСПЛУАТАЦИЮ - 1 корпуса — 2 квартал 2026 года, - 2 и 3 корпусов — 2 квартал 2027 года.
АРХИТЕКРУРНЫЕ И ИНЖЕНЕРНЫЕ РЕШЕНИЯ, ПОВЫШАЮЩИЕ КАЧЕСТВО ЖИЗНИ - Приватный безопасный каскадный двор-парк площадью более 4000м2, спроектирован как отдельный архитектурный объект с зонами, включающими в себя целый комплекс оборудования для детей и взрослых, озеленением и современным освещением, благодаря которому будет приятно гулять и отдыхать во дворе в вечернее и ночное время, - Доступ на территорию всего ЖК только для вас и ваших гостей, - Видеонаблюдение по периметру всего ЖК, безбарьерный доступ в дом с обеих сторон и современная домофония, - Дизайнерская отделка мест общего пользования, чтобы было приятно каждый раз, когда приходишь к себе домой, - Предусмотрено место для консьержа, а также туалеты на первых этажах для вашего комфорта, - Колясочные и три современных лифта c прямым доступом к индивидуальным кладовым и паркингу, - Трехэтажный приватный паркинг в 3-м корпусе: широкие проезды, индивидуальные машиноместа, безопасное и комфортное хранение вашего автопарка.
МНОЖЕСТВО ПЛАНИРОВОЧНЫХ РЕШЕНИЙ И ВАРИАНТОВ ОТДЕЛКИ - Студии, 1к, 2к, 3к, 4к и квартиры евро-формата спроектированных по стандарту ''Эргом2етрика'', учитывающие различные сценарии жизни.
Для вашего удобства для каждого варианта планировки вы можете выбрать подходящую готовности квартиры: - Без отделки, - Без отделки с выполненной стяжкой пола, - Whitebox — квартира, готовая к декорированию: стены подготовлены дя отделки, проведена электрика с учетом рекомендаций по расстановке мебели и бытовой техники, выровнен пол, в каждой квартире установлена взломостойкая входная дверь, - Whitebox plus — квартира, готовая к декорированию, в которой выполнена полностью отделка санузла, - Квартира с полностью готовой современной отделкой в светлых тонах.
Во всех квартирах лоджии имеют панорамное остекление.
Для вашего удобства в 1м корпусе открыт демонстрационный этаж, где вы сможете вживую увидеть все варианты отделок квартир. Записывайтесь на показ по контактам в этом объявлении.