Если цена в объявлении изменится, мы сразу сообщим вам об этом на электронную почту.
Нажимая «Подписаться», вы соглашаетесь с правилами.
продам 3-к квартира14 354 120 ₽
19 фев
Дата публикации объявления
Обн. сегодня
Дата обновления объявления
2
Количество просмотров (+ просмотры за сегодня)
Спецпредложение
Турбо x8
202 000 ₽/м²
Чистая продажа
Термин "Чистая продажа" означает, что в квартире никто не прописан или
есть куда выписаться и вывезти вещи. Это лучший вариант для покупателя.
Вероятность срыва сделки минимальна.
Квартира
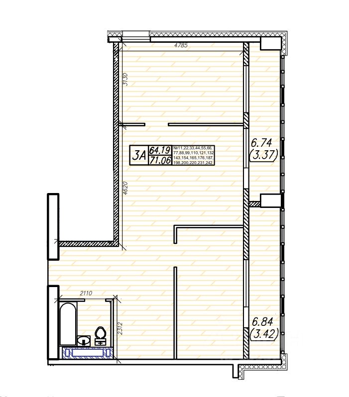
Общая площадь71,06 м2
Жилая площадь64,2 м2
Тип собственностисвидетельство о праве собственности
Дом
Срок сдачи3 кв. 2026 г.
Этаж14 из 25
Материал домакирпич - монолит
Современные клубные дома премиального уровня, расположенные в одной из самых живописных локаций города. Панорамные витражи, фасады цвета теплого морского песка, зеленые аллеи и окна с видом на морской пейзаж - синергия солнца и моря для лучшей жизни. Несколько минут и вы на берегу Амурского залива! Море вдохновляет, умиротворяет, успокаивает и очищает разум! Жизнь у моря снижает уровень стресса, заряжает позитивной энергией и повышает уровень творчества. Владивосток город у моря, и конечно же, наиболее высоким спросом здесь пользуются дома в инфраструктурно-развитых районах с шаговой доступности к морю. Именно такой эксклюзивный вариант представляет собой жилой комплекс на Енисейской, рядом с благоустроенной набережной и пляжем ''Татарка''. Эстетика в каждой детали!
Современные клубные дома премиального уровня, расположенные в одной из самых живописных локаций города. Панорамные витражи, фасады цвета теплого морского песка, зеленые аллеи и окна с видом на морской пейзаж - синергия солнца и моря для лучшей жизни. Несколько минут и вы на берегу Амурского залива! Море вдохновляет, умиротворяет, успокаивает и очищает разум! Жизнь у моря снижает уровень стресса, заряжает позитивной энергией и повышает уровень творчества. Владивосток город у моря, и конечно же, наиболее высоким спросом здесь пользуются дома в инфраструктурно-развитых районах с шаговой доступности к морю. Именно такой эксклюзивный вариант представляет собой жилой комплекс на Енисейской, рядом с благоустроенной набережной и пляжем ''Татарка''. Эстетика в каждой детали! ЖК ''Суприм'' — примечателен своей архитектурой, гармонично вписанной в ритм Владивостока. Жилой комплекс ''Суприм'' занял первое место и получил золотой диплом на 21 краевом смотре лучших архитектурных произведений ''Зодчество Приморья -2023'' в номинации: Профессиональный. Архитектура и градостроительство. Подноминация: Жилые здания и комплексы.