Если цена в объявлении изменится, мы сразу сообщим вам об этом на электронную почту.
Нажимая «Подписаться», вы соглашаетесь с правилами.
продам 1-к, Енисейская9 142 640 ₽
19 фев
Дата публикации объявления
Обн. вчера
Дата обновления объявления
2
Количество просмотров (+ просмотры за сегодня)
Спецпредложение
Турбо x8
298 000 ₽/м²
Чистая продажа
Термин "Чистая продажа" означает, что в квартире никто не прописан или
есть куда выписаться и вывезти вещи. Это лучший вариант для покупателя.
Вероятность срыва сделки минимальна.
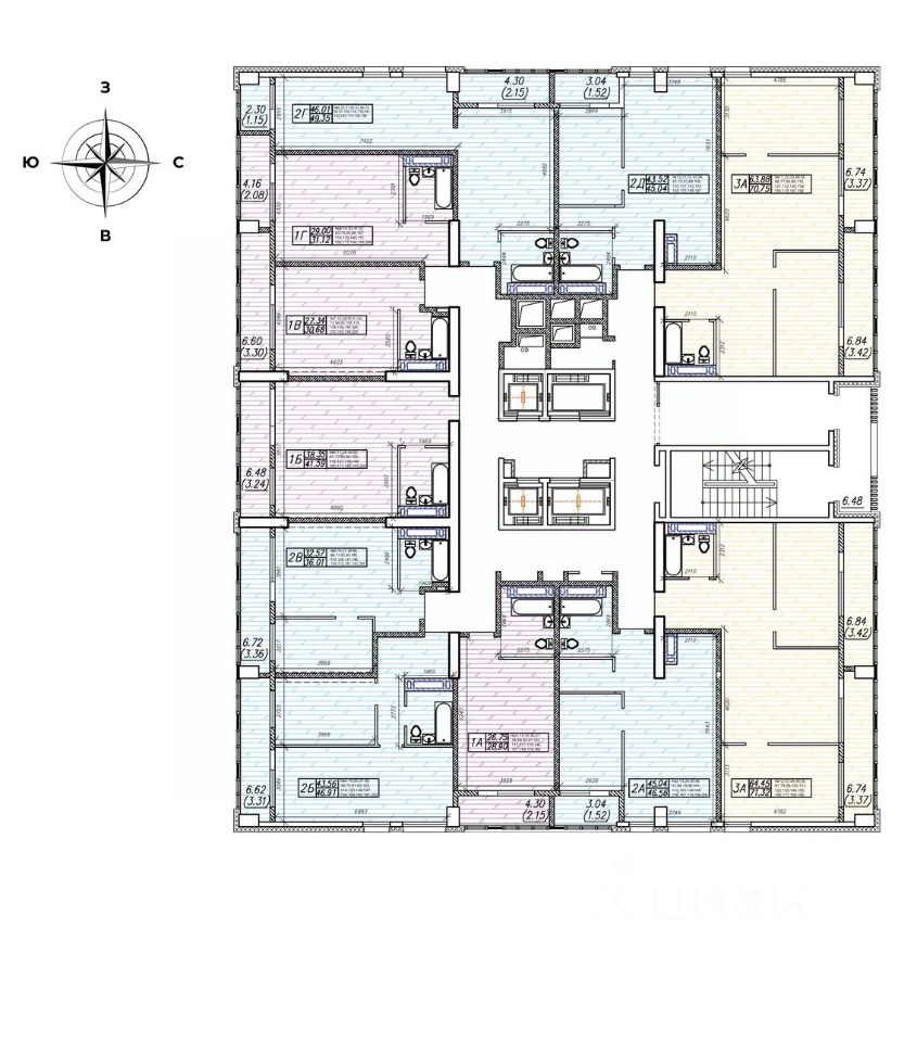
Квартира
Общая площадь30,68 м2
Жилая площадь25,7 м2
Тип квартирыстудия
Тип собственностисвидетельство о праве собственности
Дом
Срок сдачи3 кв. 2026 г.
Этаж11 из 22
Материал домакирпич - монолит
Современные клубные дома премиального уровня, расположенные в одной из самых живописных локаций города. Панорамные витражи, фасады цвета теплого морского песка, зеленые аллеи и окна с видом на морской пейзаж - синергия солнца и моря для лучшей жизни. Несколько минут и вы на берегу Амурского залива! Море вдохновляет, умиротворяет, успокаивает и очищает разум! Жизнь у моря снижает уровень стресса, заряжает позитивной энергией и повышает уровень творчества. Владивосток город у моря, и конечно же, наиболее высоким спросом здесь пользуются дома в инфраструктурно-развитых районах с шаговой доступности к морю. Именно такой эксклюзивный вариант представляет собой жилой комплекс на Енисейской, рядом с благоустроенной набережной и пляжем ''Татарка''. Эстетика в каждой детали!
Современные клубные дома премиального уровня, расположенные в одной из самых живописных локаций города. Панорамные витражи, фасады цвета теплого морского песка, зеленые аллеи и окна с видом на морской пейзаж - синергия солнца и моря для лучшей жизни. Несколько минут и вы на берегу Амурского залива! Море вдохновляет, умиротворяет, успокаивает и очищает разум! Жизнь у моря снижает уровень стресса, заряжает позитивной энергией и повышает уровень творчества. Владивосток город у моря, и конечно же, наиболее высоким спросом здесь пользуются дома в инфраструктурно-развитых районах с шаговой доступности к морю. Именно такой эксклюзивный вариант представляет собой жилой комплекс на Енисейской, рядом с благоустроенной набережной и пляжем ''Татарка''. Эстетика в каждой детали! ЖК ''Суприм'' — примечателен своей архитектурой, гармонично вписанной в ритм Владивостока. Жилой комплекс ''Суприм'' занял первое место и получил золотой диплом на 21 краевом смотре лучших архитектурных произведений ''Зодчество Приморья -2023'' в номинации: Профессиональный. Архитектура и градостроительство. Подноминация: Жилые здания и комплексы.