1-к квартира Показать на карте
Ленинский район
Владивосток
ЖК SUNRISE- место Вашего рассвета!В каждом из нас тысячи особенностей, привычек и желаний. Всё время мы находимся в постоянном поиске. Но представьте на минуту, что вы уже нашли то, о чем мечтали?Жилой комплекс SUNRISE клубного формата является наилучшим решением для современного успешного человека, который заботится не только о комфорте и здоровье, но и готов подчеркнуть свой статус и свою индивидуальность.Престижное расположение нового комплекса клубного формата по ул. Капитана Шефнера, 23 оценят все, кто хорошо знаком с историческим центром Владивостока и кто мечтает жить в его неповторимой атмосфере. К услугам жителей богатая инфраструктура района. Здесь располагаются парки, скверы, рестораны и кафе, салоны красоты, магазины, развлекательные центры. Транспортная доступность позволит за 5 минут доехать до центра города или основных транспортных развязок.Архитектурный облик выполнен в современном стиле. Комплекс гармонично вписанный в ландшафт состоит из 8 этажных домов премиальной архитектуры. Первые этажи отведены под коммерческие помещения.
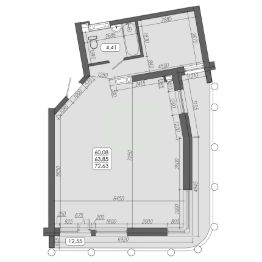
75 м2
1 / 7 этаж
Кирпич - монолит
- Показать контакты
- Добавить в избранное
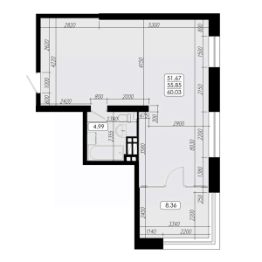
75 м2
1 / 7 этаж
Кирпич - монолит
14 290 290
190 537 /м2
Новостройка,
дом сдан
дом сдан
