
1-к, Нейбута, 137 Показать на карте
Ленинский район
Владивосток
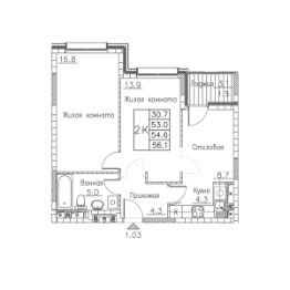
Жилой комплекс ''Гринхилс'' расположен во Владивостоке в микрорайоне Зелёный угол. Комплекс состоит из трёх двухсекционных домов комфорт-класса разной этажности. На территории будет расположен каскадный двор-парк с зонами для отдыха, прогулок и различными площадками для детей и взрослых. Предусмотрен гостевой и отдельный индивидуальный паркинг для жителей.Во дворе не будет машин, безбарьерные входы в подъезды доступны с обеих сторон. Колясочные и современные инженерные системы сделают жизнь в комплексе максимально удобной и комфортной. Благодаря продуманному освещению, жителям будет приятно гулять и отдыхать во дворе в вечернее и ночное время.
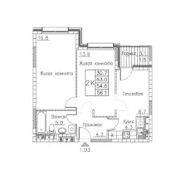
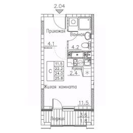
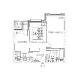
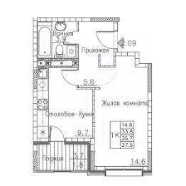
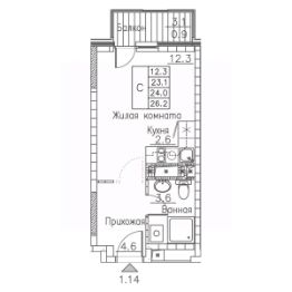
26 м2
8 / 19 этаж
Кирпич - монолит
- Показать контакты
- Добавить в избранное
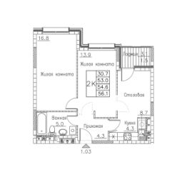
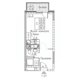
26 м2
8 / 19 этаж
Кирпич - монолит
5 808 400
223 400 /м2